
VENDITA - RIF: #12273
€ 650.000
VILLA, Capena
SCORANO, VILLA CON GIARDINO
Caratteristiche
Prezzo:
€ 650.000
Camere:
4
Servizi:
4
Mq:
200 m²
Tipologia:
VILLA
Piano:
SU PIù LIVELLI
Descrizione
Immersa in un parco protetto di circa sette ettari, tra boschi secolari e prati, questa villa unifamiliare esclusiva è un autentico rifugio di eleganza e storia. L'ingresso, sorvegliato dalla guardiania H24, si apre con un elegante cancello automatico su un viale di tigli che conduce agli spazi comuni: club house raffinata, piscina olimpionica attrezzata e tennis club, il tutto con vista sul Castello di Scorano, custode di epoche etrusche, latine e sabine.
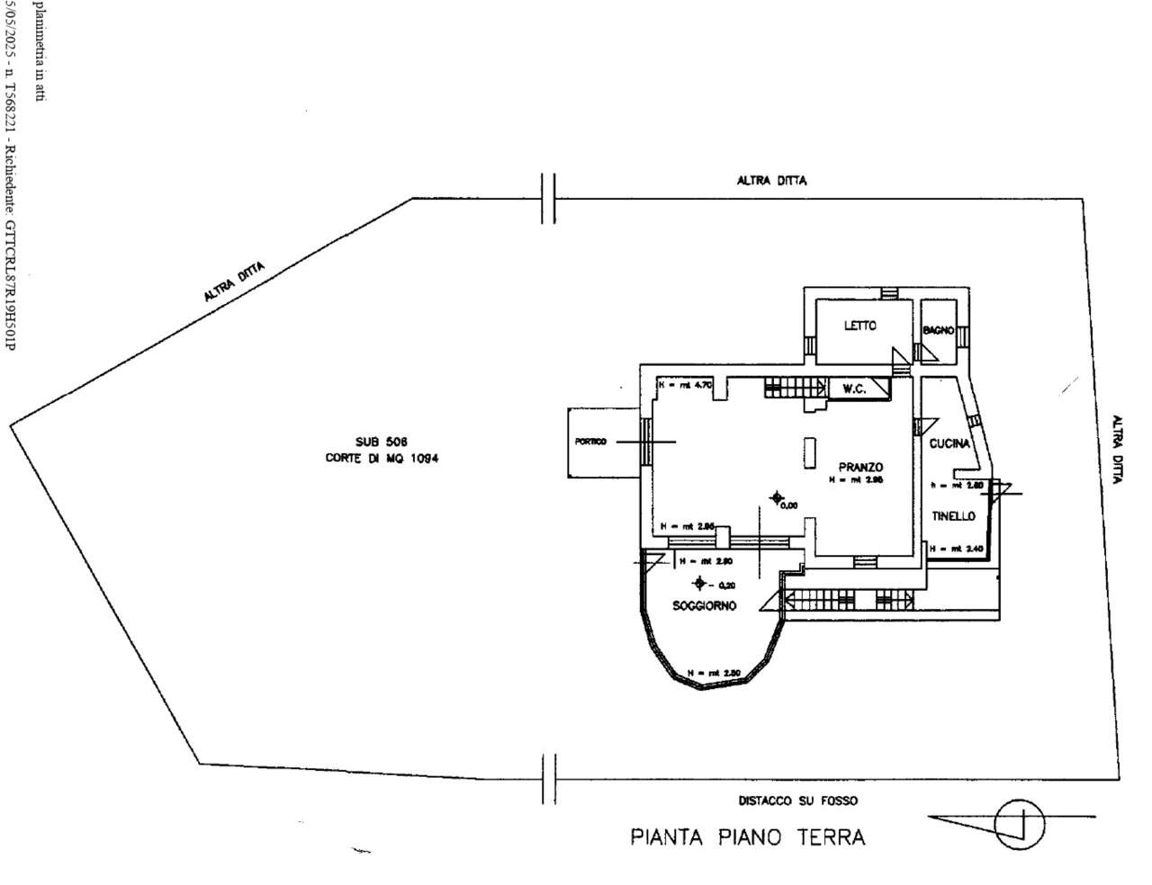
La villa, risalente al Quattrocento e in ottimo stato, si sviluppa su due livelli principali. Il piano terra ospita il doppio salone, cucina con tinello, sala da pranzo, una cameretta attualmente utilizzata come studio, due bagni (di cui uno di servizio), giardino d'inverno e due gazebi esterni. Il secondo livello accoglie la zona notte con due camere, guardaroba, bagno e la predisposizione per un ulteriore bagno.
Al piano seminterrato si trovano lavanderia, cantina e un miniappartamento con soggiorno, camera e bagno. Il giardino privato di 1.500 mq circonda la villa, offrendo privacy e charme.
Gli ambienti sono climatizzati e caratterizzati da soffitti in legno a vista, con finiture curate nei minimi dettagli. Un'oasi di pace a pochi minuti dal Raccordo Anulare, dall'autostrada e dai principali servizi, dove storia, privacy e comfort contemporaneo si fondono armoniosamente. (Cod. 12273)
La villa, risalente al Quattrocento e in ottimo stato, si sviluppa su due livelli principali. Il piano terra ospita il doppio salone, cucina con tinello, sala da pranzo, una cameretta attualmente utilizzata come studio, due bagni (di cui uno di servizio), giardino d'inverno e due gazebi esterni. Il secondo livello accoglie la zona notte con due camere, guardaroba, bagno e la predisposizione per un ulteriore bagno.
Al piano seminterrato si trovano lavanderia, cantina e un miniappartamento con soggiorno, camera e bagno. Il giardino privato di 1.500 mq circonda la villa, offrendo privacy e charme.
Gli ambienti sono climatizzati e caratterizzati da soffitti in legno a vista, con finiture curate nei minimi dettagli. Un'oasi di pace a pochi minuti dal Raccordo Anulare, dall'autostrada e dai principali servizi, dove storia, privacy e comfort contemporaneo si fondono armoniosamente. (Cod. 12273)
Features
Cantina
Giardino
Portiere
Condizionatore
Efficienza energetica
Stato
OTTIMO
Riscaldamento
Autonomo
Classe Energetica
G
Posizione
via tiberina 4, Capena






































































